Project Sessions
WEEK 9 (20 March 2013)
[Computer Controlled Machining ]
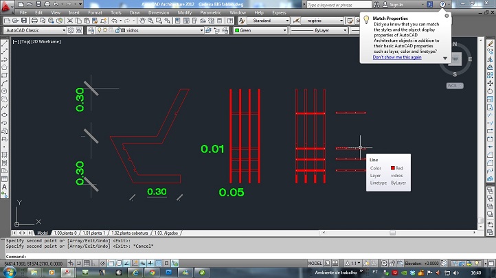
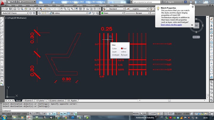
This week the assignment was to design "something big".
I designed a Chair Fireplace. For the construction I use wood, the thickness is over 10 mm.
Step 1: I had to design it in AutoCad and 3DS - Max:

The chair is not only big but also it is build in Press-Fit, and 4 chairs together make a wood sofa.

Chair 3ds-max :

Wood Sofa 3ds-max (Something Big):

I'm waiting the lab put the CNC milling machine to work, and also has the wood in order to use...
The ShopBot machine still not working, so I had to cut my work in the laser. I helped my classmates sharing the idea of the chair, to get the idea big we planned to build 4 chairs to make a Wood Sofa.
Conclusions:
The end result was not to my liking, so I will repeat the whole process one more time, but I go increase the thickness of the wood to 20mm, I'll wait for the fab lab to put into operation the ShopBot machine.












