To make (almost) anything

About Me Assignments Final Project Fab lab 2019
Computer-Controlled Machining
Individual Assignment

Make Something Big!

Group Assignment

Test Runout, Alignment, Speeds, Feeds, and Toolpaths for your machine

Individual Assignment

For this assignment I decided to make table . As I mentioned in Week4 Computer-controlled Cutting The design of week4 will help me in Week8. in week 4 i design a test part of the table , But here is the first step towards my final project .So intially i started work on sketch of the table where i discussed with my local insrutors Mr.Soahil Ahmed Somroand Mr. Noor Ahmed Pirwani.After discussing i started make sketch of the table in board and also tried on paper to clear sktech in my mind.

5 Terre

Sketch On Table

5 Terre

Anoher view

After doing this the next step i did is draw sketch on paper to clear my mind about design.Like how it looks like after designing etc.

5 Terre

Sketch On paper

5 Terre

Sketch On paper

Let’s Start to make design

As i already mention that i have design test part of the table in week4 , So in this week I actually implementing that test part using CNC milling (Shop Bot). just i have to make that design accordingly , and setting things according to CNC Milling .

5 Terre

Defining The Dimensions

5 Terre

Definig Parametric Equation

Definig the thickness parameter as variable. I defined global variable name "thk" value 16mm according to the material thickness.

5 Terre

pocket

5 Terre

After Extrude Cut

5 Terre

Side leg

5 Terre

After Extrude Cut

5 Terre

cuting outside from top

I did this by using the tool mirror entities.

5 Terre

After Extrude Cut

5 Terre

Base

Now the next step is to make side legs from other side that is little grater than previuos side .

5 Terre

Base

5 Terre

Extrude Cut

5 Terre

After Extrude Cut

Now all the components are ready the next step is to assemble them . All Compoenets are put into assebly file where i mate all components.

5 Terre

All Components are in Assembly

5 Terre

Final table

5 Terre

Another View

After succssfully doing assenbly the next step i did i make drwaing from assebly file , for dfx file

5 Terre

Making Drawing

5 Terre

Making Drawing

Genertaing Toolpaths

The Next step afer dfx file is to generate G_code for shopbot machine for this i used Vcarve. Where intially i setting design according to the material size that we have and te toolpaths according to the design. After that i performed joining and dog bones repectively.

We are using VCarve Pro Software to generate the G-Code for ShopBot, below we described each step for this process:

5 Terre

Fill the job setup menu by entering board dimensions (width, height and thickness), set the XY Datum Position by clicking on bottom left corner, set units (our dxf files are in millimeter so we select "mm" in this column) and in last for appearence we select MDF because we are using MDF, then click "OK" for file operations.

5 Terre

To generate a toolpath a vector is required, so we draw rectangle on whole board.

5 Terre

after making vector now we are setting up the toolpath. Click on "Pocket toolpath" option in toolpath tab, then set the cut depth to "1mm" this shaves the whole board over 1mm, then select the "tool", in our case we select 1/4" Spoil-board cutter (the picture of the tool is mentioned above). Now select the vector, name the toolpath and click on "Calculate"

5 Terre
5 Terre

Adjusting the components

5 Terre

Joining

DOG-BONE:Dog bone corners are a jargon-y way to describe the shape of a corner that is extended outside the cut area to create a perfect 90º corner that looks like the cartoon shape of a canine chew toy.We used dog-bones for this problem in the design, For this command we have to just click on the filletcommand from the edit objects menu and from there we can select dog-bone and edit the object's corner. For further understanding you can click HERE .

5 Terre

DOG-BONE

Tool Information

5 Terre

Tool Info

In the above image you can see the values of rpm,feedrate, stepover ,tool-diameter etc. basically these are the by default values and in our lab we mostly operate the machine on these values , so for I did follow these values and operate the machine and the result was completely accurate. So for we did cut the test part on these by default vales and also cut the final part on these values.

CNC Milling Process
  • The first thing that needs to be done is to install the desired milling bit.
  • Connect the system with the shopbot software installed using the 2 USB cables provided.
  • Open the shopbot software.
  • We need to make the origin fro the drill bit so for this, open the keypad option by clicking the yellow icon in the position menu.
  • Using the arrow key move the bit to the desired origin point.Also set the z-axis. The bit should touch the bed exactly at a point that it scraps the top layer.
  • The bit can be moved slowly by clicking on the fixed button. Once the origin is set, click on zero axes and set x,y, and z as zero.
  • Now import the g-code file by clicking the cut part option.
  • Press the start option.
  • Switch the exaust on.
  • On the emergency board, hit the start button.


  • 5 Terre

    Shopbot software

    5 Terre

    Shopbot software

    5 Terre
    5 Terre

    Emergency board

    Shopbot For Cutting

    After Generating G-code the Next step is to finaly start cutting with Shopbo. Before doing that we need to make sure that the tools that we used according to the design and toolpaths that we generated or not if not so we need to change it. I used two tools one for writing fab lab khairpur name in legs of the table and second for other design

    5 Terre

    While Changing Tool

    After changing tool i ready the job for CNC machine. Initially i cut the name that i want in table side and i changed tool accordignly.

    5 Terre

    Cuting Name

    Cuting Name

    5 Terre

    With Local Instructor

    5 Terre

    Selfie :-)

    After Cutting the name the next step is to cut other compoenets for that i need only one and same tool for cut so i changed tool and given job to machine

    Cutting Others part

    Cutting pocket

    It akes almost three hours to complete this job.Finaly here is the almost complete cut of the design

    Almost completed

    5 Terre

    All parts

    After cutting te next step is main and most critical part of the this week assingmnet is assmeblig the compoents .I taken almost three hours to assmeble the all components because before doing this we must be careful about the critical parts and sides of the design.

    5 Terre

    While assembling the compoenets

    And here is the final design that is ready.

    5 Terre

    My Table

    5 Terre

    Top

    5 Terre

    Hero shot:-)

    Group Task

    What is CNC Machining ? CNC Machining is a process used in the manufacturing sector that involves the use of computers to control machine tools. Tools that can be controlled in this manner include lathes, mills, routers and grinders. Initially we learnt how to run the cnc machine which is described below. For this we made a design in solid works and cut it in CNC.

    First and foremost we read this document where feeds, speeds and other stuff is explained very well after that we started with milling process so before starting with the milling process, the first thing that needs to be done is to install the desired milling bit, material and vacume chamber. The desired material can be placed and fixed tightly on the shopbot bedsheet. Placing the clamps is very crucial because if you placed them at wrong position then cnc machine might hit the clamps and ruins everything. Vacume chamber is also necessary which can be seen below in figure. This vacume is used to take off all the swarf outside of shopbot bedsheet and save in vacume chanmber. Furthermore it is very necessary that bit should be installed in the collet and this is done with the help of these special spanners. After doing this all we connect the system with the shopbot software installed using the 2 USB cables which are provided. On opening the software the axial location of the bit and a command like a screen appears.

    5 Terre

    Installing bit

    5 Terre

    Shop Fox Vacume Chamber

    Now we need to move the drill bit to a point that we consider origin. To do this open the keypad option by clicking the yellow icon in the position menu. By using the arrow key or the on-screen arrows move the bit to the desired origin point. Setting Z could be slightly tricky. The bit should touch the bed exactly at a point that it scraps the top laye

    5 Terre

    Setting Originr

    The bit can be moved slowly by clicking on the fixed button. Once the origin is set, click on zero axes and set x,y, and z as zero

    5 Terre

    Setting x,y and z zero

    Now its time to import the G-code into the software and this can be done by clicking the cut parts and choosing the GCODE file. Hit start. The code gets loaded up and a message appears to hit the start button in the control box.

    5 Terre

    Importing G Code

    5 Terre

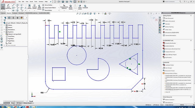
    Solidworks Design

    5 Terre

    After Cutting

    5 Terre

    After Cutting

  • We have the MDF sheets in lab with thickness of 16.3mm. So we cutted part in that sheet, we used both outside cut and inside cut on different areas and also used pocket tool path you can also see in image and after cutting it was fixing in 16.7mm cutted area, we cutted this area with outside cut toolpath.
  • It's All about this week , very creative and informative week so for and hope And many more to come!

    You may Download all files from here

    This is all for this week

    Creative Commons License
    This work is licensed under a Creative Commons Attribution-NonCommercial 4.0 International License.