Brainstorming
The first thing we did was hard to discuss, what kind of machine we wanted to do. It was a long discussion where each of us shared his point of views.
We finally decided to do a CNC lathe.
The video you can see below was edited by Heloisa Neves, to explain a little brainstorming.
Components
After several designs made by Marc and Hummin, Helosia and I decided to do a few chips short of the necessary components to build around.
We did the photos, looking where to buy them, and that price range might have.
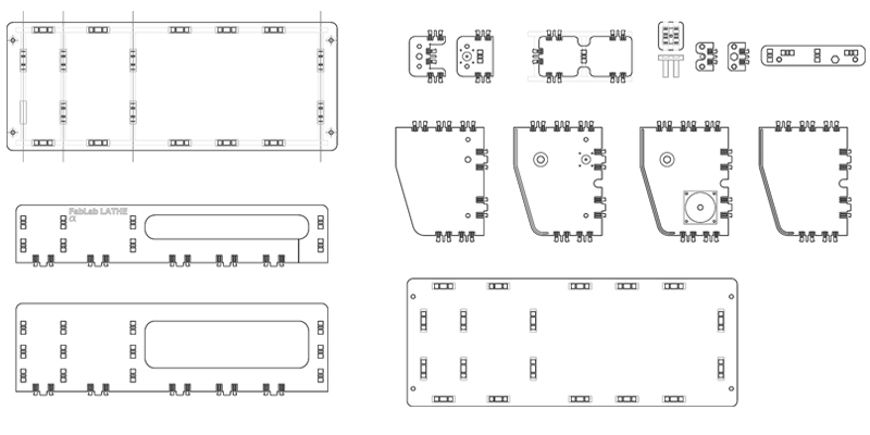
Design
CAD
After several designs and 3ds, Marc Gisbert over, what would be the final design in 2D (AutoCAD) to check that everything was perfectly suited decided to draw it in 3D.

Download Cad: CNC LABLATHE 2012_CAD
3D Model
I drew the 3D model with Rhinoceros, and adjusted again Cad, with minor modifications. Now he was ready to start making the strategy for milling.

Download 3D Model: CNC LABLATHE 2012_3D